北京大兴国际机场地跨北京市大兴区和河北省廊坊市,从高空俯瞰,北京大兴国际机场宛若展翅的凤凰。到2040年,将共达到7条跑道,占地68平方公里,年货邮量为400万吨,旅客量达到1亿人次以上,成为全球最大枢纽机场。被誉为“世界新七大奇迹”。这只傲视帝都的钢铁凤凰从一露面开始,就被各大媒体刷屏,英国《卫报》忍不住将它评为「新世界七大奇迹」之首。单体建筑面积140万平方米,核心区面积70万平米,屋盖实验可抵御17级特强龙卷风。据报道该项目航站楼及综合换乘中心完全采用BIM设计,下面是BIM相关方案。
项目概况
机场主体建筑航站楼由中央主楼和五条互呈60度夹角的放射状指廊构成,航站楼以北的综合服务楼平面形状与航站楼的指廊相同,与航站楼共同形成了外包直径1200米的总体构型。北京新机场中心区域的支撑间距达200米,所形成的无柱空间可以完整的放下一个水立方。为保证中心区屋面及支撑结构体的完整,以及功能区的完整,北京新机场航站楼中心区混凝土楼板513mX411m不设缝,是国内最大的单块混凝土楼板。这块完整的混凝土大板,可以将国家体育中心(鸟巢)置于其上。作为综合交通枢纽,航站楼主楼地上共四层,采用了上部双出发层-下部双到达层的基本楼层功能设置,并配置了双层出港高架桥,航站楼近机位共79 个,地下一层设置轨道进出站的连接过厅和轨道站厅,连接地下二层的两条城际铁路线和三条城市地铁线, 采用8台16线布局,与目前的北京火车站规模相当。综上所述,北京新机场航站区工程具有项目规模巨大、建筑功能复合,专业系统众多、协调环节密集,质量标准严格等主要特点,对工程建设的规划、设计、施工、管理都提出了很高的要求,在紧迫的设计周期下,BIM的应用充满机遇与挑战,需要协调一致的BIM标准和具有针对性的BIM设计策略。
BIM标准与管理

在项目初始阶段,针对新机场项目特点同时设置了BIM数字标准与BIM管理标准。为实现这一庞大的BIM协同设计系统,设计团队做了充分的准备,并确立了严格的BIM数字标准,提出了明确的BIM文件接口标准,保证整体设计的协同推进。核心团队进行了专项BIM培训,并对电脑设备进行了升级;设置了各级BIM负责人;制定了BIM管理计划;从文件命名规则、图层标准,到模型拆解逻辑、深度标准,以及交付成果的表达和要求,都进行了详细规定。
设计策略

在当前技术条件下,单一的BIM工具完全无法实现如此复杂项目的设计目标。在策划阶段,就确定了多平台协同工作,以适用性为导向的BIM技术框架。如建筑外围护体系使用Autodesk T-spline同Rhinoceros结合共同作为设计的核心平台处理自由曲面;大平面体系中,主平面系统使用传统的Autodesk Cad平台,保证设计的时效性;对于专项系统中楼电梯、核心筒、卫生间、机房这样的独立标准组件,我们使用Autodesk Revit平台,利用建筑信息化的优势,确保这些复杂组件的三维准确性。通过成熟的协同设计平台,将这三个大的体系整合在大平面中,实时更新,协同工作。通过这样适用、高效的BIM和协同设计平台,得以整合上百人的设计团队,只用了一年的时间,就完成了新机场从方案调整深化、初步设计、施工图的全部设计过程,体现出了BIM技术对于设计效率的巨大提升。
外维护体系BIM应用

屋顶曲面与屋面主结构网格关系航站楼的自由曲面造型是外围护工程的难点。BIAD通过主动创新,在BIM平台上综合运用Autodesk T-spline曲面建模与编程工具,实现了对外围护系统的全参数化控制,大到屋面钢结构定位,小到吊顶板块划分,都在同一套屋面主网格系统的控制下展开。屋面主网格是一套整合屋面,采光顶,幕墙,钢结构等多专业,多层级的空间定位系统,以受参数化程序控制的屋面钢结构中心线为基础,在满足建筑效果的同时符合结构逻辑。在主网格系统的基础上,我们通过逐级深化的方式不断推进设计,接力主网格程序对屋面大吊顶进行分缝,分板参数化设计,对吊顶板块进行数据化分析,优化板块类型。各屋面子系统,如虹吸雨水,马道等也采用三维方式定位设计。
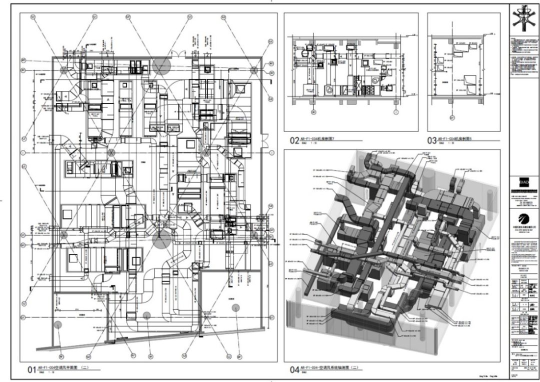
大平面体系BIM应用

北京新机场大平面体系的BIM架构分为主平面系统和专项系统两部分,在主平面系统中,运用Autodesk AutoCAD平台上成熟的协同设计模式快速推进设计,并随设计节点创建和更新建筑、结构、设备全专业的Autodesk Revit模型,同各专项系统,外围护系统模型一起在Autodesk Navisworks,Autodesk Stingray中进行三维校核及漫游演示。在专项系统设计中,BIAD发挥Autodesk Revit平台的优势,集中处理大量信息:全楼共计141个不同的卫生间,148部自动扶梯,42部玻璃电梯,98部混凝土电梯,设备专业的BIM设计中,将全楼数百间机房作为专项系统进行全BIM设计,其中最大的单间空调机房内同时运行设备40多台,BIAD对BIM的应用不仅止于管线的几何表达,更看中其信息处理能力,如流量,压力,流速等,为更深入,高效的设计提供依据。

北京新机场也将机场建筑特有的专项设计向前推进:标识系统是机场功能组织的重要环节,BIAD利用基于Autodesk Revit平台的Dynamo编程对全航站楼共计3114块标识牌进行参数化设计与管理,包含每块标识牌的位置,类型,指向信息等;行李系统的几何信息与运行分析同样有赖于BIM专项设计。
计算机智能设计
遗传算法是人工智能领域的计算机技术,BIAD将其应用在遮阳网片计算和C形顶的结构划分这两部分工作中,计算机在我们通过程序设定的逻辑与条件下,找到了问题的最优解。这是以往无法凭人力得到的。为了降低航站楼能耗,BIAD将一层轻薄的遮阳网片置于采光顶玻璃片的中空层中,在保障室内采光的同时可以最大程度遮挡南向直射光。每个遮阳网片单元形式由4个参数控制,每个参数的不同取值会组合产生上万种形式。计算机根据采光顶所处的位置从中筛选出其中热工性能的最优解,使得透过采光顶获得约60%进光量的同时仅接收约40%的热能。

C形柱上方的采光顶是室内空间的视觉焦点。综合视觉与结构需求,需要在结构网格划分上实现三个目标:1.边缘整齐2,玻璃分板均匀 3.分板结构梁程相近。为此,我们为主要划分线设置了88个控制点,通过遗传算法调整各个控制点的相对关系,最终得到分板均匀,具有张力的结构网格。
专项分析研究与设计验证
新机场的设计中,BIAD使用计算机技术对建筑光环境,CFD,热工等物理环境进行分析模拟,使航站楼更安全,节能,高效。包含如下主要内容:
1、室外光环境的模拟分析辅助采光与遮阳的设计;室内照明系统的分析计算。
2、物理风洞实验分析与计算机模拟分析;室内自然通风模拟。
3、基于建筑物理模型的围护结构热工参数优化分析。

计算机模拟技术不但用于模拟航站楼所处的物理环境,还应用与对机场未来运行的状况的仿真分析:在航站楼内,通过对机场室内人流的模拟,可以评估出等候每处电梯,安检排队的等候时间,进而优化流线设计,提高运行效率。在航站楼外,通过建立起场跑滑系统数学模型,优化调整登机口布局,获得最优的站坪运行效率;
BIM信息管理
实施方在新机场的项目中建立了完整的数据库。例如将卫生间系统的数据同机场运营经验统计数据相关联,即可判断出各处卫生间洁具数量是否能应对高峰期的客流压力。通过数据的信息交付,新机场各系统的海量信息将在未来持续服务于施工与运营。
声明:本文章内容来自中教文化 ,若有版权问题,请联系我们删除。
返回